
2階の吹き抜け上からリビングを見下ろす。玄関とリビングは低い壁で仕切られているのみ。玄関土間はリビングまで伸び、薪ストーブが置かれている。玄関右手にはシューズクロゼットとコート掛けがあり、家族はそこから室内へ出入りできる
■Data 【つながりの家】
所在地:廿日市
家族構成:4 人(夫婦+子ども2 人)
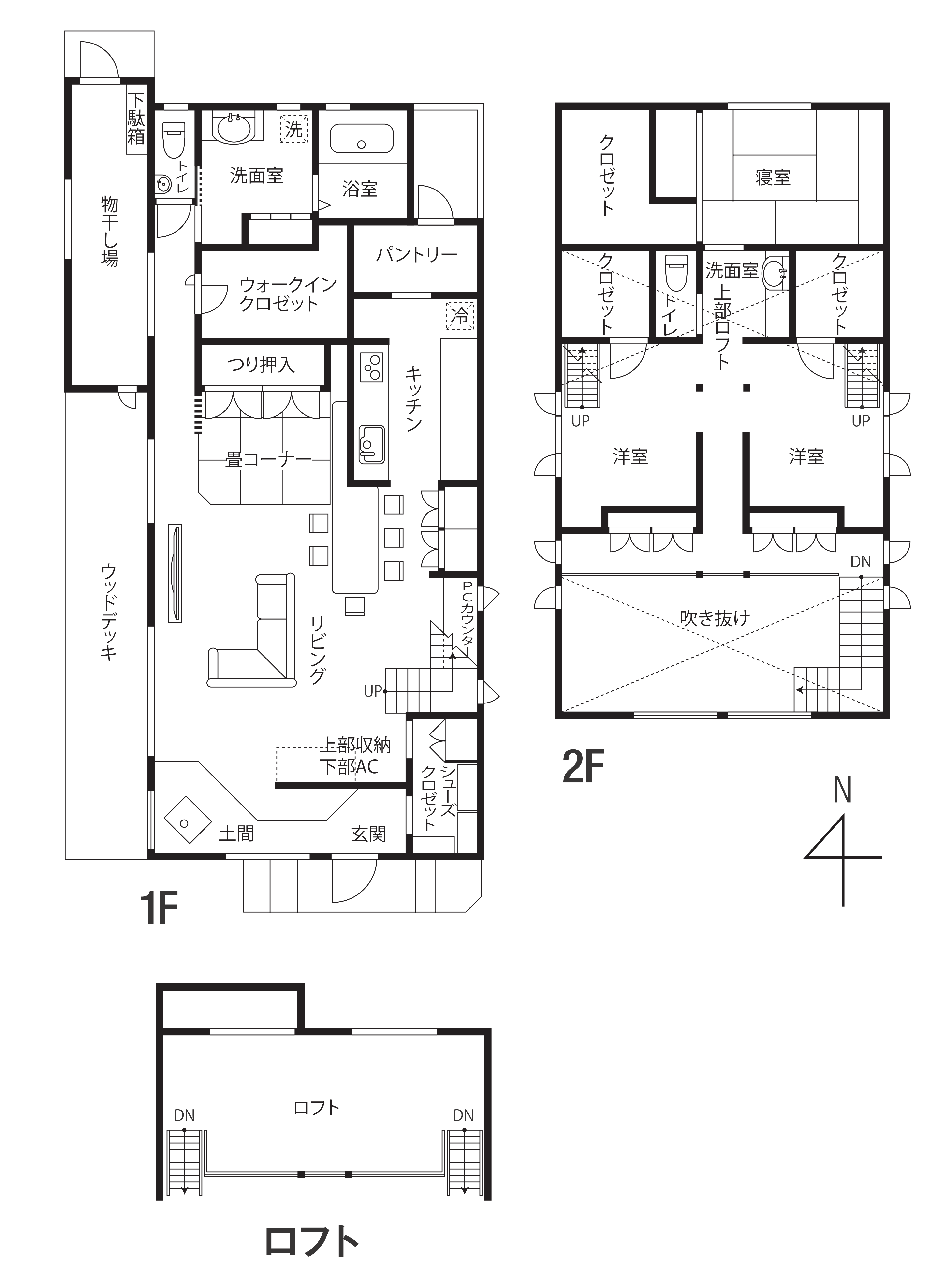
敷地面積:538.74㎡ 延床面積:150.71㎡
1 階面積:89.64㎡ 2 階面積:61.07㎡
断熱性能:0.25W/㎡・K 気密性能:0.09㎠ /㎡
設計:日高裕一 施工:あなぶき実重建設
廿日市市の市電の駅からほど近く、利便性の良い住宅街の一画にH様の家はあります。奥様の実家の敷地内に家族4人が暮らす新居をかまえました。
「つなげる」というテーマで家づくりを行ったH様一家。父母が暮らす母屋との〝つながり〟、一緒に住む家族との〝つながり〟、そして空気の〝つながり〟を大事に考えました。そのヒントは大きな片流れの屋根にあります。この家は、玄関からロフトまで吹き抜けを使った大きな一体空間。玄関とリビングの間には衝ついたて立のような壁があるだけで、完全には仕切られていません。高断熱・高気密につくられているため、冬に玄関が寒いということがなく、仕切る必要がないのです。ちなみに廊下もありません。
玄関からは2階のロフトまで見渡すことができます。ご主人が帰宅して玄関で靴を脱ぎながらも家族がどこにいるかが一目瞭然。キッチンにいる奥様や子ども部屋で勉強する子どもたちに向かって声をかけることも簡単です。
奥様の実家である母屋とは、お互いの勝手口をウッドデッキでつなぎ、2世帯は自由に行き来が可能。2つの家族が安心して暮らすことができます。

階段下を利用したパソコンスペース


母屋の庭を眺めるリビングの窓(右) 両家はウッドデッキの渡り廊下でつながっている(左)

薪ストーブの煙突と片流れの大きな屋根が目印。太陽光発電も搭載して、ゼロエネルギーも夢ではない。奥に見えるのが奥様の実家
睡眠以外の日常や家事は1階ですべてできるように設計されている。炊事はもちろん、洗濯、物干し、クロゼットといった衣類に関するスペースも1階の一角に集中させている
【エアコンを冬用と夏用に分ける】

冬用のエアコンは、収納下に設置。温風を床下に送っている(右)通常は機器が丸見えにならないようにガラリ戸で隠している(左上)温風が吹き出し口から出てきて窓際を暖める(左下)
H様の家には、壁掛け式のエアコンが見当たりません。エアコンは、リビングの床際と2階のロフトに1台ずつ。冬用と夏用に分けて設置しているのです。冬用のエアコンは、リビングでも玄関に近いところに置いて、上昇する暖気の性質を利用し、1階床からロフトへと暖めていきます。温風は床下に送られており、ロフトと床下をつなぐファン付きバイパスダクトを設けて暖気を届けて家全体を効率良く暖めています。
一方、ロフトのエアコンは夏用です。暖気とは逆で冷気の下降する性質を利用して、上から下へと涼風を送ります。こうして冬も夏もエアコン1台で月々の電気代は1万円前後で、快適に暮らしているそう。ただし、この手法は高断熱・高気密でないとうまくいかないので、ご注意を。

夏用エアコンは家の中で1番高いところに設置。勾配天井を伝って涼風が下へと降りてくる

玄関の土間に置いた薪ストーブの暖気は、勾配天井に沿って室内の奥まで届けられる。ただし、エアコン1台で十分に暖かいため、薪ストーブは暖房というよりは、炎を眺めて楽しむご主人の趣味となっている
窓の高低差をうまく利用し空間をつなげてあげると、外で風が吹いてなくても家の中の空気は流れ換気することができる
★レモンの技 空気の流れを調節できる無双窓を造作


この家で唯一の個室は2階奥の主寝室。基本は戸を開け放しておけば快適な状態になりますが、空気の流れを止めないようにロフトとつながる無双窓を設けています。無双窓とは、日本家屋の伝統的な建具の様式で、格子に取り付けたもう1枚の板を動かして、通風や採光を調整するという優れもの。夏、寝室に熱がこもったときには、無双窓を開けてロフトへ逃がし、代わりに夏用エアコンの冷気を取り入れます。冬は暖かい空気が逃げないように閉めておきます。
【姉妹をつなぐちょうど良い距離】



【つながっているから、心も体も暖かい】



年頃の姉妹の部屋は、リビング階段を上った2階のホールを収納家具で仕切ったセミオープンスタイル。姉妹は仕切り越しに会話をしたり、自由に行き来をしたりしている。それぞれのスペースから上がれるロフトは、ベッドが並べて置かれている。「姉妹は時々ケンカもしますが、こもりきりにならず仲良くやっています。視線は外して声は聞こえる、という距離感が家族にはちょうどいいです」とご主人。勉強や家事に集中しながらも「つながっている」という安心感を得ることができるという

